7652 Slater AvenueHuntington Beach, CA 92647


Mortgage Calculator
Monthly Payment (Est.)
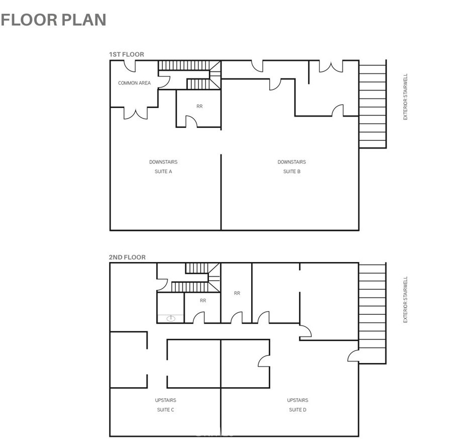
$4,106Prime Industrial-Zoned Office/Showroom Condominiums – Flexible Investment Opportunity in Huntington Beach Discover this versatile ±3,462 SF multi-unit property at 7652 Slater Avenue A-D, ideally positioned in the heart of Huntington Beach's thriving industrial and commercial corridor. Currently configured as four (4) separately parceled office condominiums with a prominent ±550 SF showroom space, this 2-story building offers immediate income potential from office or professional users while unlocking significant future value through its underlying industrial zoning. Key highlights include: - Four (4) separate parcels — perfect for owner-user occupancy, multi-tenant leasing, or individual sales for maximum flexibility and exit strategy. - Six (6) reserved parking spaces for convenient tenant and client access. - New roof installed in 2024 — recent capital improvement for peace of mind and reduced maintenance. - Three (3) 400-amp HVAC systems with separate controls — efficient, zoned climate control tailored to individual units. - Fully sprinklered building for enhanced safety and insurability. - Strong location in a high-demand area near major thoroughfares, supporting a wide range of professional, service, or light industrial applications. Zoned for industrial uses (with current office/showroom configuration), this property presents exceptional upside for a savvy buyer. Potential to reimagine the space for light manufacturing, warehouse/distribution, R&D, custom industry, or expanded commercial services—options not typically available under standard office zoning. This rare flexibility in a coastal Orange County market can drive higher long-term returns and broader tenant appeal. Additional incentive: The seller is offering the first right of refusal to purchase the adjacent attached garages when they become available—ideal for adding storage, vehicle bays, or expanded operational space. Priced aggressively at $900,000, this asset combines stable cash flow today with substantial redevelopment or repositioning potential tomorrow. Don't miss this opportunity to secure a strategically located, well-maintained property in one of Southern California's most desirable coastal markets. Contact for private showings, financials, or to discuss how this fits your investment or owner-user goals.
| 21 hours ago | Listing first seen on site | |
| 21 hours ago | Listing updated with changes from the MLS® |
This information is for your personal, non-commercial use and may not be used for any purpose other than to identify prospective properties you may be interested in purchasing. The display of MLS data is usually deemed reliable but is NOT guaranteed accurate by the MLS. Buyers are responsible for verifying the accuracy of all information and should investigate the data themselves or retain appropriate professionals. Information from sources other than the Listing Agent may have been included in the MLS data. Unless otherwise specified in writing, the Broker/Agent has not and will not verify any information obtained from other sources. The Broker/Agent providing the information contained herein may or may not have been the Listing and/or Selling Agent.


Did you know? You can invite friends and family to your search. They can join your search, rate and discuss listings with you.